Menu
Home
YANLU Aluminium
Enterprise profile
Enterprise culture
Enterprise quality
Enterprise honour
Contact us
Products
Common Sliding Window
Sliding Window with Fly-screen
Common Sliding Door
Common Side-hung Window
Common Side-hung Door
Home Decoration Door Deries
Side-hung Window with Thermal Insulation
Aluminium Alloy Railing
Thermal Insulation Sliding Window
Thermal Insulation Sliding Door
Aluminium Office Partition
Aluminium Alloy Curtain Wall
Cabinet Door Profile
General Aluminium Profile
Profile surface
Extinction electrophoresis colored plated
Wood-grain colored plate
Electrophoresis colored plate
Brushed extinction electrophoresis colored plated
Powder coating colored plate
Application Cases
Project Cases
Information
Procurement Standard
Industry Concern
YANLU News
Dealer services
Agency Cooperation
Dealer Announcement
Download
Technology
Production standard
Production Process
Management System
中文
Homepage
YANLU Aluminium
Common Side-hung Window
Location:
Homepage
--
Products
Common Side-hung Window
Common Sliding Window
Sliding Window with Fly-screen
Common Sliding Door
Common Side-hung Window
Common Side-hung Door
Home Decoration Door Deries
Side-hung Window with Thermal Insulation
Aluminium Alloy Railing
Thermal Insulation Sliding Window
Thermal Insulation Sliding Door
Aluminium Office Partition
Aluminium Alloy Curtain Wall
Cabinet Door Profile
General Aluminium Profile
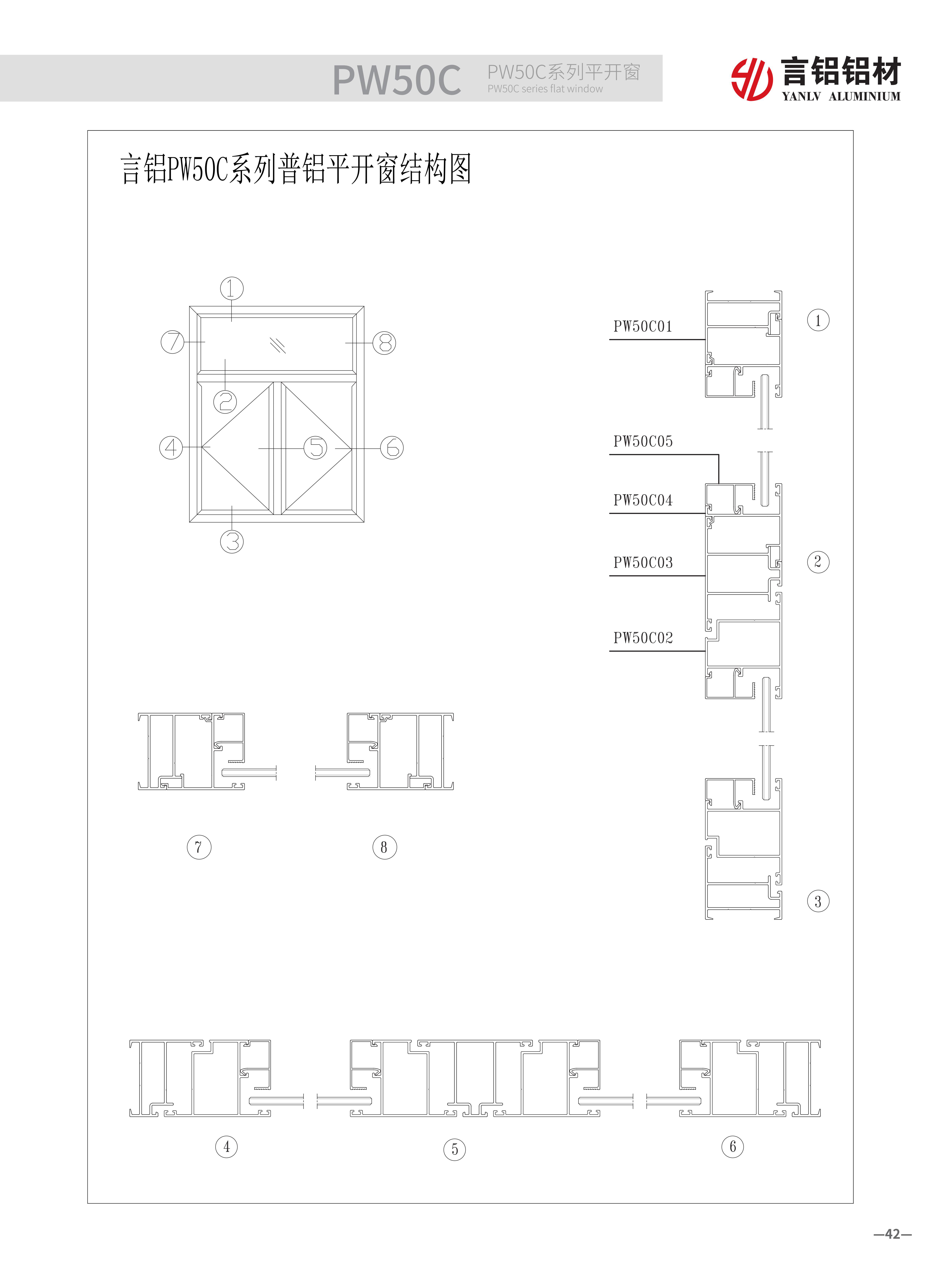
PW50C系列平开窗
Product parameters
Next:PW55A系列平开窗